5 copia 2

Wettbewerb Schule im Sand

3930 Visp

Städtebau

Das Konzept für die Freifläche im Bearbeitungsperimeter basiert auf einer dreieckigen Geometrie und nimmt den Massstabsunterschied zu den umgebenden Wohnbauten sensibel auf. Um diesen Übergang zu gestalten, werden zwei Baukörper vorgeschlagen, die im Untergeschoss durch eine Sporthalle verbunden sind. Dies schafft Flexibilität im Umgang mit der umgebenden Landschaft und verhindert eine massive Wirkung der Neubauten.

Die Positionierung der beiden Volumen berücksichtigt den Kontext und respektiert die bestehenden Gebäude, insbesondere das Schulhaus. Durch die Ausrichtung der Baukörper werden keine Parzellengrenzen direkt bebaut, wodurch Freiräume aus der Umgebung integriert und bis an die Fassaden der Neubauten herangezogen werden können. Die neuen Gebäude ergänzen das bestehende Ensemble und fügen sich harmonisch in das Schulareal ein.

Besonderes Augenmerk wird auf den Erhalt der Sichtachsen zur umliegenden Natur gelegt. Durch die Platzierung der Baukörper bleibt die natürliche Belichtung und die Aussicht vom Schulhaus gewahrt. Die Turnhalle ist eingeschossig konzipiert, um keine Konkurrenz zum Bestand zu schaffen.

Der zentrale Pausenplatz bleibt ein wichtiges Erschliessungselement. Die Höhenunterschiede zwischen Platz und Neubauten werden durch eine grosszügige Treppe überbrückt. Im Aussenbereich entstehen durch die dreieckige Geometrie der Parzelle zonierte Grünflächen, die zur Gestaltung unterschiedlicher Themen genutzt werden können. Die bestehende Grünfläche hinter der Sporthalle bleibt erhalten und soll weiterhin als Erholungsraum dienen.

Visu

Durchwegung

Die Durchwegung innerhalb des Areals bleibt weiterhin bestehen. Mit den zwei
neuen Volumen gliedern sich diese an die Haupterschliessungsachse vom Langsamverkehr. 

Auch weiterhin bleiben die befahrbaren Flächen bestehend und dienen als Zugang für die Feuerwehr, wie auch als Zugänge zu den Parkplätzen.

240407 Variant 4 1develop Layout 2

Wichtige Plätze

Mit der Setzung der neuen Volumen soll sich das städtebauliche Konzept an den
Bestand lehnen. Durch die Setzung erzielen wir über das ganze Areal kleinere und grössere Freiräume mit verschiedenen Themen. 

So geraten die Pausenplätze in den Fokus. Der bestehende Pausenplatz erschliesst weiterhin die Bestandesbauten. Der neue Pausenplatz erschliesst die bestehende sowie die neue Turnhalle und auch das neue Schulhaus.

Pagina 2 layout copia

Schnitt A

A

Schnitt B

B

Schnitt C

C

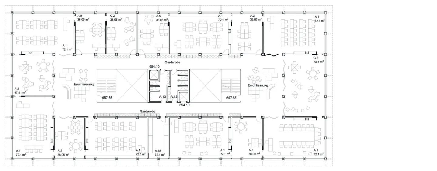
Grundriss EG 

EG

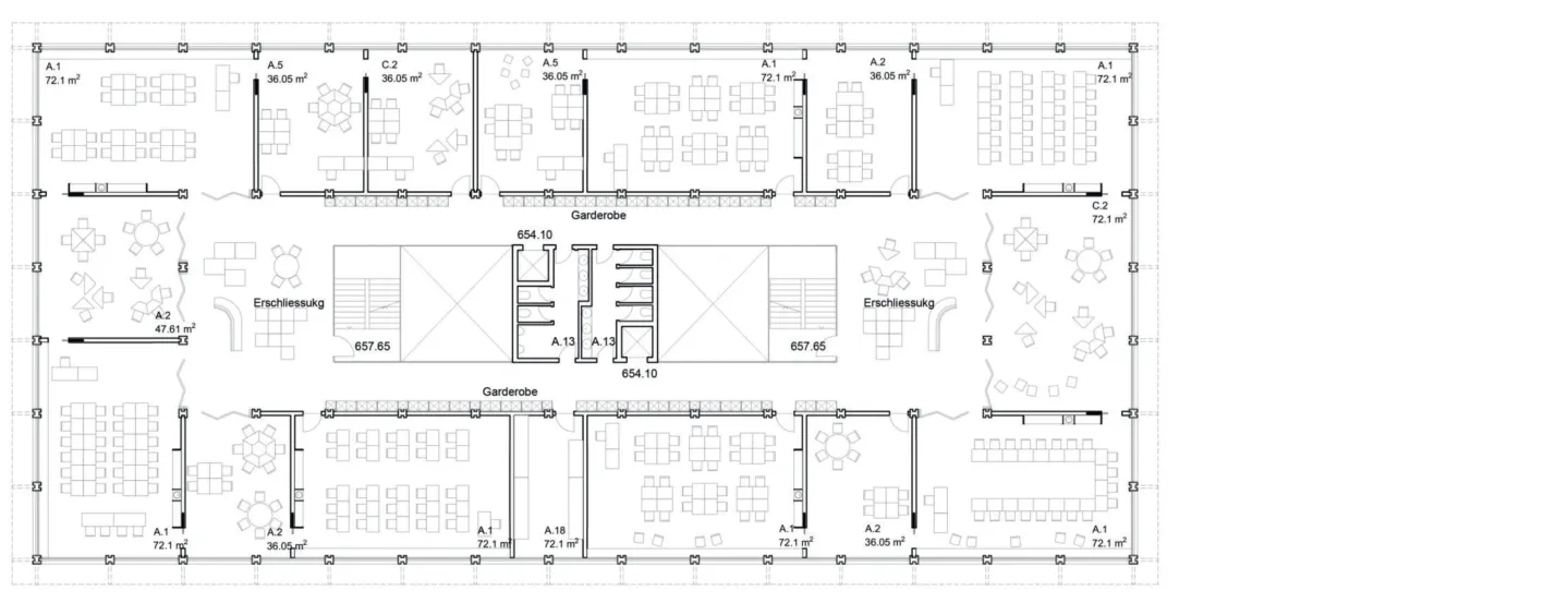
Grundriss 1.OG

1 OG

Grundriss 2.OG

2 OG

Grundriss 3.OG

3 OG