IMG 5266 3

MFH Bersetweg 14

Bersetweg 14, 3074 Gümligen

Innovative Fassade

Im Mai 2019 konnte in Gümligen der Neubau eines Mehrfamilienhauses am Berestweg 14 fertiggestellt werden. Die fünf Eigentumswohnungen mit Kellerabteil und Einstellhallenplatz wurden von den Käufern individuell mitgestaltet. Nebst den Küchen konnten der Bodenbelag und auch kleinere Grundrissänderungen individuell gewünscht und angepasst werden.

Die vier 3,5- Zimmer Wohnungen im Erd- und Obergeschoss verfügen über grosse, südlichöstlich ausgerichtete Terrassen- und Balkonflächen, während die 4.5- Zimmer Attikawohnung mit einer grosszügigen Dachterrasse überzeugt. Alle Wohnungen sind über die einzigartige Wendeltreppe aus Stahl erreichbar, die sich aussen am Gebäude befindet. Der Lift im Innern verbindet den Keller mit den drei Wohngeschossen.

IMG 5270 2

Doch nicht nur die auffällige Aussentreppe macht das Gebäude einzigartig. Bei der Wahl des Fassadensystems hat man sich für ein Einsteinmauerwerk entschieden, welches aus Backsteinen mit einer Wärmedämmfüllung in den Zwischenräumen besteht. Diese Hochleistungsbacksteine mit integrierter Mineralwolldämmung namens CAPO 365 vereinen die Trag-, Dämm- und Schutzfunktion einer Fassade und garantieren beste Brandschutz-, Schallschutz- und Wärmedämmeigenschaften.

IMG 0156

Grundriss Attika

Die Attikawohnung am Bersetweg zieht durch ihren grosszügigen Balkon sofort alle Blicke auf sich. Dieser bietet reichlich Platz, um die Zeit draussen an der frischen Luft zu geniessen, sei es für gemütliche Stunden im Freien oder um eine grüne Oase mit Pflanzen und dekorativen Elementen zu gestalten. Dank der grosszügigen Fläche können die Bewohner und Bewohnerinnen den Balkon ganz nach Ihren Wünschen einrichten und sowohl Entspannung als auch Ihre kreative Gartengestaltung ausleben.

Bersetweg Attika 1

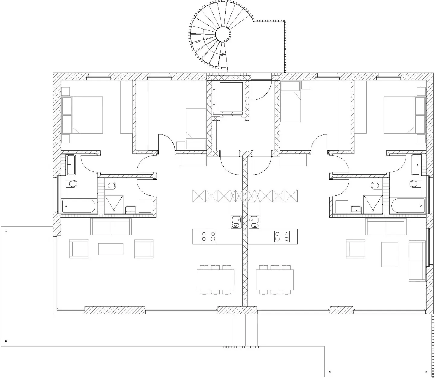
Grundriss Obergeschoss

Wie auch die Wohnung im Attika ist die Wohnung darunter per Wendeltreppe und Lift erreichbar. Anders jedoch wird der Raum auf zwei Wohnungen aufgeteilt welche grössräumig und modern auftreten. Unter anderem bieten sie je zwei Nasszellen, zwei Schlafzimmer und ein grossräumiger Küchen-Wohnzimmer Bereich.

Bersetweg Obergeschoss 1